小屋を改造しております。@2020.5.21 完成となりました。
強まる日差しに夏の気配を感じる薄暑の候
さて本日は前回予告させて頂きましたとおり
L・D・Kが完成となりましたので掲載させていただきます
すっかりボード貼りも終わり安堵しました

間髪入れずパテ埋も完了

Mさんにクロスを貼っていただきました

内装も仕上がりましたので
Kさんに分電盤、コンセント、照明器具なんかを取り付けてもらいました

そして竣工となりました
家具やら家電移動前に撮影させて頂きました


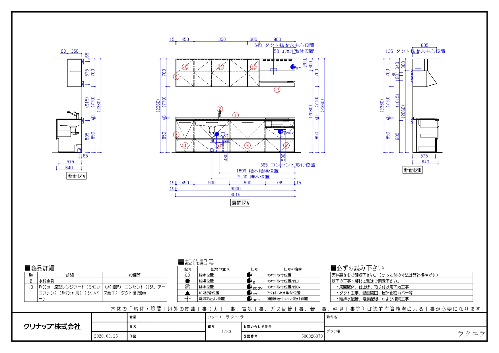
クリナップのキッチンもいい色でとても良い印象でした

以下はプレゼン資料と図面です (※拡大可)
着工より5週間ほどの工期となりましたが
無事にお引き渡しなり
お客様にも喜んで頂き
私どもも大変うれしく思っております
さてさて今回は3回にわたりリフォーム工事を掲載させて頂きました
また最後までご覧頂きありがとうございました
どんなことでもお気軽にご相談頂ければ幸いです
水回り・トイレ・お風呂・キッチン・リフォームのプロ

-
柳川市・大川市・みやま市・筑後市・大牟田市近郊で、水回りのプロとしてお客様のちょっとしたお困りごとから何でもお応えします!
(水回りのプロ,お風呂,キッチン,トイレ,リフォーム,オール電化,太陽光発電)
最新の投稿
スタッフブログ2025.11.25モニター広告の掲載(⌒∇⌒)
施工事例2025.11.12H様邸 【庭防草シート工事】
その他の工事2025.10.25H様邸【玄関サッシ工事】
施工事例2025.09.29☆ M様邸 システムキッチン交換工事 ☆彡





